Long Thành House

Danh mục:

Thi công

Phong cách:

Đương đại

Phương hướng:

Đông Nam

Thời gian:

2024

Long Thành House là một dự án kiến trúc gợi nhẹ yếu tố Đông Dương độc đáo nằm ở thị trấn Long Thành, huyện Long Thành, tỉnh Đồng Nai. Với diện tích khu đất 182 m² và diện tích xây dựng 160 m², dự án được thiết kế bởi đội ngũ kiến trúc sư của KTU Design & Build, kết hợp hoàn hảo giữa sự hiện đại và nét đẹp truyền thống.

Long Thành House tọa lạc ở một vị trí thuận lợi, cách các tiện ích và khu vực trung tâm thành phố không xa. Đồng thời, dự án nằm trong khu vực có cảnh quan thiên nhiên tươi đẹp và khí hậu ôn hòa, lý tưởng cho cuộc sống thư giãn và tiện nghi.

Phân Khu chức năng hợp lý:

Tầng trệt: Bao gồm các khu vực chức năng như sân hiên, phòng khách, bếp, phòng ăn và sân sau kết hợp vườn rau, đảm bảo sự tiện nghi và kết nối không gian.

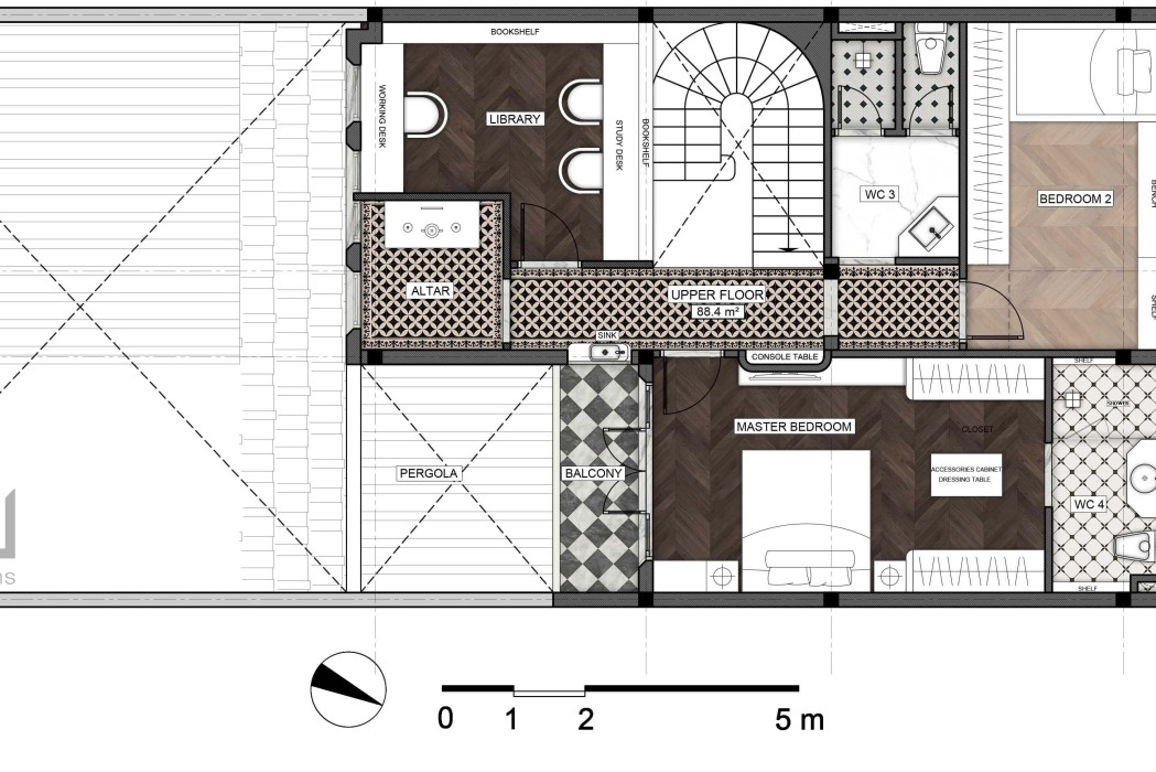
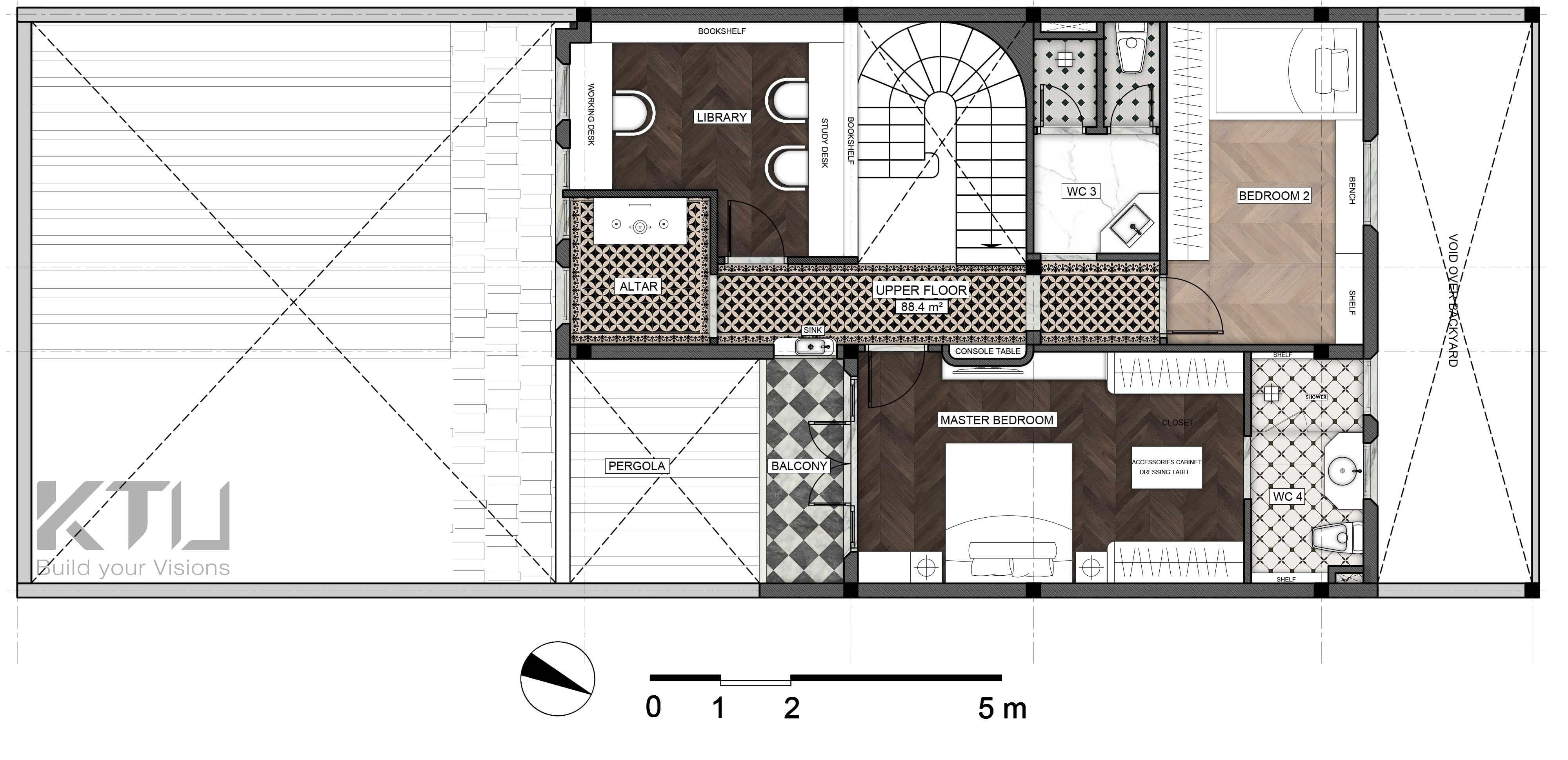
Tầng lầu: Gồm các phòng ngủ, phòng thờ, thư phòng và sân thượng tạo nên không gian sinh hoạt đa dạng và thoáng đãng.

Giải pháp kiểm soát nắng và gió

Thiết kế của Long Thành House tận dụng tối đa ánh sáng tự nhiên và các khoảng mở, cửa đi và cửa sổ lớn hướng Đông Nam. Đội ngũ KTS đã thiết kế vị trí cửa sổ phù hợp và áp dụng kỹ thuật bẫy gió, giúp không gian luôn thoáng mát và tiết kiệm năng lượng cho các thiết bị làm mát. Đặc biệt, cửa sổ trời phía trên thang giúp thoát khí nóng một cách tối ưu.

Các vật liệu được lựa chọn kỹ lưỡng bao gồm gỗ, đá marble đen, kim loại mạ vàng và các loại vải nội thất cao cấp, tạo nên một không gian sáng trọng và bền vững. Nội thất được thiết kế tinh tế phù hợp với công năng sử dụng, mang lại sự tiện nghi và thoải mái cho gia chủ.

Long Thành House không chỉ là một ngôi nhà, mà còn là một tác phẩm kiến trúc, nơi bạn có thể tận hưởng cuộc sống tiện nghi và thư giãn giữa thiên nhiên. Hãy đến và khám phá vẻ đẹp của Long Thành House cùng KTU Design & Build.